LeidenKlooster 11€ 250.000,- k.k.
Description
Midden in het bruisende hart van Leiden ligt dit charmante 2-kamerappartement aan het Klooster 11. Het appartement maakt deel uit van een kleinschalig complex met een rijke historie en grenst aan het pittoreske Stevenshof. In deze straat proef je de sfeer van de oude binnenstad: met eeuwenoude panden, de nabijgelegen Pieterskerk en de historische hofjes bevind je je hier letterlijk tussen de geschiedenis van Leiden.
Met de Haarlemmerstraat om de hoek heb je alle voorzieningen binnen handbereik, van gezellige restaurants en cafés tot winkels en culturele hotspots. Ook het Rijksmuseum Boerhaave en Museum De Lakenhal liggen om de hoek. Tegelijkertijd biedt de ligging aan het hofje een oase van rust midden in de stad.
De indeling is als volgt:
Je komt binnen via een gezamenlijke entree op de begane grond. Hier bevindt zich een gezamenlijke fietsenberging met wasmachines en een aparte ruimte waar de meterkast hangt.
Begane grond:
Bij binnenkomst tref je een compacte hal met toegang tot de badkamer. De badkamer is voorzien van een ruime inloopdouche, een wastafel, een handdoekradiator en een toilet.
Eerste verdieping:
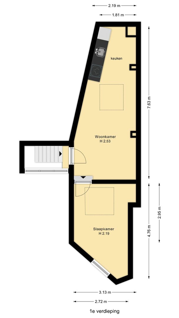
Een trap leidt naar de eerste verdieping met de woonkamer met open keuken en de ruime slaapkamer. De keuken is uitgerust met een koelkast, combimagnetron, kookplaat en afzuigkap.
Overige bijzonderheden:
– Gebruiksoppervlak wonen: 42,5 m²
– Inhoud woning: 136 m³
– Bouwjaar: 1850
– Energielabel: B
– Warm water en verwarming middels een Remeha HR-combiketel uit 2017
– Elektra: nieuwe meterkast met voldoende groepen en aardlekschakelaars
– De woning is in 2017 gemoderniseerd
– De VvE is opgericht en recent actief gemaakt
Features
Address Details
- Street name
- Klooster
- House number
- 11
- Zipcode
- 2312 WD
- City
- Leiden
Transfer of ownership
- Asking price
- € 250.000,- k.k.
- Asking price per m²
- € 5.814
- Status
- Sold
- Listed since
- 2 months
- Acceptance
- In consulation
Construction
- Kind of house
- Apartment
- Year of construction
- 1850
Surface areas and volume
- Usable area
- 43 m²
- Volume area
- 136 m³
Layout
- Number of bedrooms
- 1 bedroom
- Number of rooms
- 2 rooms
- Number of bathrooms
- 1 bathroom
- Number of stories
- 2 stories
- Facilities
- 1 toilet
Energy
- Energy class
- B
- Energy label end date
- 01-05-2034
- Insulation
- roof, double glass
- Boiler type
- Remeha
- Boiler year
- 2017
- Boiler property
- Owned
- Boiler combi
- Yes
Exterior space
- Location
- calm road, in centrum, covered site




