LeidenLangegracht 165-B€ 265.000,- k.k.
Description
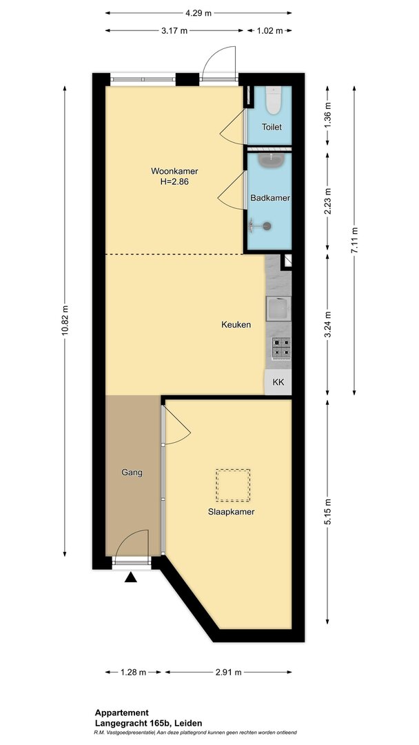
Wonen in het centrum van Leiden, maar dan wél rustig – dat is precies wat je krijgt met dit fijne tweekamerappartement aan de Langegracht. Met 50,2 m² woonoppervlak, hoge plafonds en een slimme, speelse indeling is dit een plek waar je je meteen thuis voelt. Het appartement ligt op de begane grond van een kleinschalig complex en is ontstaan uit een voormalige fysiopraktijk.
Je komt binnen via de gezamenlijke entree en stapt de gang in, waar je direct rechts de slaapkamer vindt. Een rustige kamer aan de voorzijde, met genoeg ruimte voor een tweepersoonsbed en kastruimte. Loop je verder, dan kom je in de lichte woonkamer met een open keuken aan de rechterkant. De keuken is voorzien van inbouwapparatuur en slim ingedeeld, met zicht op de zithoek die achterin ligt. Hier is het verrassend rustig, mede dankzij de ligging aan de achterzijde van het pand. Vanuit de woonkamer heb je toegang tot de nette badkamer met inloopdouche en een apart toilet. Achterin is ook een tweede uitgang, die direct uitkomt op het achtergelegen terrein met een privé parkeerplaats die hoort bij het naastgelegen complex.
En die ligging is echt ideaal. Je woont hier letterlijk in het centrum van Leiden: winkels, de markt, gezellige cafés en restaurants, supermarkten en het station liggen allemaal op een paar minuten lopen. Toch voelt het binnen en aan de achterzijde van het pand opvallend stil en beschut – je hebt hier echt het beste van twee werelden.
Of je nu starter bent, een fijne plek zoekt voor je studerende zoon of dochter, of gewoon op jezelf woont en graag centraal zit: dit appartement is instapklaar, netjes onderhouden en klaar voor een nieuwe bewoner.
Overige bijzonder:
– Gebruiksoppervlakte wonen: 50,2 m²
– Inhoud: 178,2 m³
– Bouwjaar: 1981
– Energielabel: A
– Verwarming en warmwater middels gedeelde HR-combiketel (2018)
– Ideaal voor studerende zoon/dochter
– De woning valt binnen beschermd stadsgezicht
– Maakt deel uit van een actieve VvE waarvan maandelijkse bijdrage a € 36,50,- per maand
– Gas, water, licht en internet is op basis van een voorschot waarvan maandelijkse bijdrage ca. €125,- per maand
Features
Address Details
- Street name
- Langegracht
- House number
- 165-B
- Zipcode
- 2312 PA
- City
- Leiden
Transfer of ownership
- Asking price
- € 265.000,- k.k.
- Asking price per m²
- € 5.300
- Status
- Sold
- Listed since
- 3 months
- Acceptance
- In consulation
Construction
- Kind of house
- Apartment
- Year of construction
- 1981
Surface areas and volume
- Usable area
- 50 m²
- Volume area
- 178 m³
Layout
- Number of bedrooms
- 1 bedroom
- Number of rooms
- 2 rooms
- Number of bathrooms
- 1 bathroom
- Number of stories
- 1 story
- Facilities
- 1 douche
Energy
- Energy class
- B
- Energy label end date
- 20-09-2033
- Insulation
- double glass
- Boiler type
- Remeha
- Boiler year
- 2018
- Boiler property
- Owned
- Boiler combi
- Yes
Exterior space
- Location
- calm road, in centrum, covered site




