LeidenLangegracht 165€ 265.000,- k.k.
Description
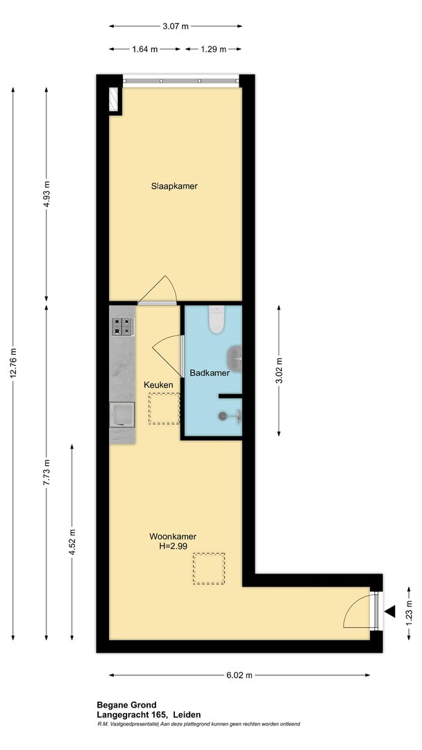
Wonen in het hart van Leiden, maar dan wél rustig – dat is precies wat dit recent opgeknapte tweekamerappartement aan de Langegracht biedt. Met een woonoppervlak van 42,8 m², hoge plafonds en een slimme, speelse indeling is dit een plek waar je je direct thuis voelt. Het appartement ligt op de begane grond van een kleinschalig complex en is ontstaan uit een voormalige fysiopraktijk.
Via de gezamenlijke entree stap je de hal binnen, die toegang geeft tot de lichte woonkamer met open keuken. De hoge plafonds met dakramen zorgen voor een prettige hoeveelheid daglicht. De keuken is voorzien van een nieuwe oven, 4-pits gasfornuis en afzuigkap. De wanden zijn strak gestuct en geschilderd, en door de hele woning ligt een nieuwe laminaatvloer.
Tegenover de keuken bevindt zich de ruime, opgefriste badkamer, uitgerust met een nieuw badkamermeubel, handdoekradiator, douchescherm en douchekraan. De slaapkamer ligt aan de achterzijde van de woning en is verrassend ruim en licht – een fijne, rustige plek om je terug te trekken.
De ligging is ideaal: midden in het centrum van Leiden, met winkels, de markt, cafés, restaurants, supermarkten en het station allemaal op loopafstand. Toch is het binnen opvallend stil en voelt de achterzijde van het pand heerlijk beschut – hier geniet je echt van het beste van twee werelden.
Of je nu starter bent, een comfortabele woonruimte zoekt voor je studerende zoon of dochter, of gewoon op jezelf wilt wonen met alles binnen handbereik: dit appartement is instapklaar, goed onderhouden en helemaal klaar voor een nieuwe bewoner.
Overige bijzonderheden:
– Gebruiksoppervlakte wonen: 42,8 m²
– Inhoud: 160,6 m³
– Bouwjaar: 1981
– Energielabel: A
– Verwarming en warmwater middels gedeelde HR-combiketel (2024)
– Ideaal voor studerende zoon/dochter
– De woning valt binnen beschermd stadsgezicht
– Maakt deel uit van een actieve VvE waarvan maandelijkse bijdrage a € 36,50,- per maand
– Gas, water, licht en internet is op basis van een voorschot waarvan maandelijkse bijdrage ca. €125,- per maand
Features
Address Details
- Street name
- Langegracht
- House number
- 165
- Zipcode
- 2312 PA
- City
- Leiden
Transfer of ownership
- Asking price
- € 265.000,- k.k.
- Asking price per m²
- € 6.163
- Status
- Sold
- Listed since
- 2 months
- Acceptance
- In consulation
Construction
- Kind of house
- Apartment
- Year of construction
- 1981
Surface areas and volume
- Usable area
- 43 m²
- Volume area
- 161 m³
Layout
- Number of bedrooms
- 1 bedroom
- Number of rooms
- 2 rooms
- Number of bathrooms
- 1 bathroom
- Number of stories
- 1 story
- Facilities
- 1 toilet
Energy
- Energy class
- A
- Energy label end date
- 20-09-2033
- Insulation
- roof
- Boiler type
- Remeha
- Boiler year
- 2018
- Boiler property
- Owned
- Boiler combi
- Yes
Exterior space
- Location
- calm road, in centrum, covered site




