Charming early 20th-century home near the city centre and Huigpark
Located within short distance of the city centre and Huigpark, this attractive early 20th-century home offers comfortable and characterful living. The property has a living area of 79 square metres and features a charming living room, two bedrooms, a pleasant roof terrace and a storage room with direct access from the street. Thanks to the many windows, the house enjoys an abundance of natural light, creating a very welcoming atmosphere. High ceilings on both the ground floor and first floor further enhance the sense of space. The entire property is fitted with double glazing.
The historic centre of Leiden can be reached within minutes, as can Huigpark, restaurants and other everyday amenities. Leiden Central Station is just over a five-minute bike ride away.
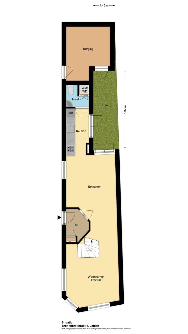
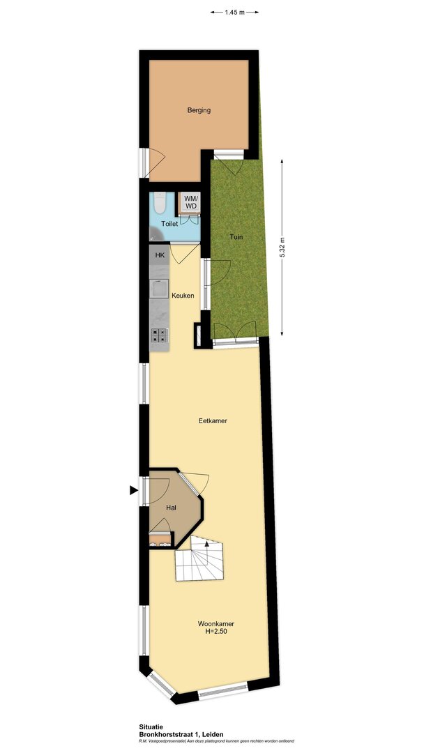
Layout:
Ground floor:
The entrance to the house is located on the side. Hallway with wardrobe area and meter cupboard. Bright through-living room with parquet flooring. At the front there is space for a cosy seating area, while the rear—adjacent to the kitchen—offers more than enough room for a large dining table.
In the rear extension you will find the kitchen, which is equipped with a dishwasher, refrigerator, combination microwave, gas hob and extractor hood. Behind the kitchen are the toilet and the washing machine connection. At the rear of the house is a courtyard, accessible both via the kitchen door and through French doors from the living room. The attached stone storage room can be accessed from both the courtyard and directly from the street.
The front door and access to the storage room are located on the quiet Mauritsstraat.
First floor:
Landing with the central heating combination boiler located above the staircase. At the front is a spacious bedroom with a large window area. The generously sized bathroom features a skylight, bathtub, toilet, radiator and vanity unit. The second bedroom is located at the rear and provides access to the roof terrace. The south-facing roof terrace is finished with hardwood decking.
Additional features:
Living area (NEN 2580): 79 m²
Other internal space: 9.6 m²
Building-related outdoor space: 18.2 m²
Volume: 339 m³
Energy label: E
Year of construction: 1910
Plot size: 72 m²
Heating and hot water via combination boiler (2025)
Entire property fitted with double glazing, except for the front door
Electrical installation: 4 groups and one residual current device
Parking via residents’ permit (Zone B, €61 per year)
Om de beste ervaringen te bieden, gebruiken wij technologieën zoals cookies om informatie over je apparaat op te slaan en/of te raadplegen. Door in te stemmen met deze technologieën kunnen wij gegevens zoals surfgedrag of unieke ID's op deze site verwerken. Als je geen toestemming geeft of uw toestemming intrekt, kan dit een nadelige invloed hebben op bepaalde functies en mogelijkheden.
Functioneel
Always active
De technische opslag of toegang is strikt noodzakelijk voor het legitieme doel het gebruik mogelijk te maken van een specifieke dienst waarom de abonnee of gebruiker uitdrukkelijk heeft gevraagd, of met als enig doel de uitvoering van de transmissie van een communicatie over een elektronisch communicatienetwerk.
Voorkeuren
De technische opslag of toegang is noodzakelijk voor het legitieme doel voorkeuren op te slaan die niet door de abonnee of gebruiker zijn aangevraagd.
Statistieken
De technische opslag of toegang die uitsluitend voor statistische doeleinden wordt gebruikt.De technische opslag of toegang die uitsluitend wordt gebruikt voor anonieme statistische doeleinden. Zonder dagvaarding, vrijwillige naleving door uw Internet Service Provider, of aanvullende gegevens van een derde partij, kan informatie die alleen voor dit doel wordt opgeslagen of opgehaald gewoonlijk niet worden gebruikt om je te identificeren.
Marketing
De technische opslag of toegang is nodig om gebruikersprofielen op te stellen voor het verzenden van reclame, of om de gebruiker op een site of over verschillende sites te volgen voor soortgelijke marketingdoeleinden.