LeidenKoolgracht 31€ 375.000,- k.k.
Beschrijving
Modern en licht 3-kamerappartement met zonnig balkon in hartje Leiden!
In het rustige hart van Leiden, verscholen in een doodlopende en autoluwe straat, ligt dit keurig onderhouden 3-kamerappartement met balkon op het zuiden. Gebouwd in 2005, volledig geïsoleerd, voorzien van zes zonnepanelen en energielabel A. Dit is een modern en comfortabel appartement waar je zó in kunt trekken. De ligging is ideaal: midden in het levendige centrum, maar met de rust van een beschutte woonomgeving.
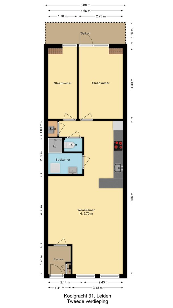
Het appartement bevindt zich op de tweede verdieping van een kleinschalig complex met een actieve en gezonde VvE. Bij binnenkomst via de galerij kom je in de hal met ruimte voor een garderobe en schoenenkast. Vanuit hier loop je de lichte woonkamer binnen, waar de zithoek om de hoek een knusse en prettige indeling creëert. De eethoek sluit mooi aan op de open keuken, die in de lengte is geplaatst en veel opbergruimte biedt. De bar vormt een gezellige plek om aan te zitten, terwijl de keuken zelf compleet is uitgerust met inbouwapparatuur en nog in uitstekende staat verkeert.
De badkamer bevindt zich tegenover de keuken en is voorzien van een douche, wastafelmeubel, handdoekradiator en een aansluiting voor de wasmachine. Om de hoek vind je het separate toilet en de technische ruimte met de Nefit HR-combiketel (2022) en de mechanische ventilatie box. Hier is ook extra bergruimte beschikbaar voor bijvoorbeeld schoonmaakspullen of stofzuiger.
Aan de achterzijde liggen de twee slaapkamers. De hoofdslaapkamer is licht en ruim, met directe toegang tot het zonnige balkon op het zuiden. Een fijne plek om in alle rust te genieten van de middag- en avondzon. De tweede slaapkamer is iets kleiner, maar perfect geschikt als werkkamer of inloopkast. De moderne meterkast is uitgerust met zeven groepen en twee aardlekschakelaars, en biedt voldoende ruimte voor eventuele uitbreiding.
Op de begane grond beschikt het appartement over een eigen berging. Parkeren kan in de omgeving met een vergunning voor zone A (€ 54 per kwartaal, momenteel met wachtlijst).
De Koolgracht ligt op een fantastische plek: midden in de historische binnenstad van Leiden, maar in een rustige, doodlopende straat waar nauwelijks verkeer komt. Alles wat de stad te bieden heeft – gezellige cafés, restaurants, winkels en musea – ligt op loopafstand. Ook Leiden Centraal, de Universiteit en het Bio Science Park zijn binnen enkele minuten met de fiets bereikbaar. Dankzij de gunstige ligging aan de westkant van het centrum zijn ook de A44 en A4 goed te bereiken, waardoor steden als Den Haag, Amsterdam en de kust eenvoudig bereikbaar zijn.
Overige bijzonderheden:
– Gebruiksoppervlakte wonen: 64,3 m2
– Gebouw gebonden buitenruimte: 6,8 m2
– Inhoud: 212 m3
– Bouwjaar: 2005
– Energielabel: A
– Elektrische installatie: 7 groepen en 2 aardlekschakelaars
– Centrale verwarming en warm water middels HR-combiketel uit 2022
– Isolatie: volledig geïsoleerd
– Maakt deel uit van actieve en gezonde VvE waarvan maandelijkse bijdrage € 139,35
– Beschikt over balkon op het zuiden
– Gehele inrichting is ter overname
Kenmerken
Adresgegevens
- Straatnaam
- Koolgracht
- Huisnummer
- 31
- Postcode
- 2312 PD
- Stad
- Leiden
Overdracht
- Vraagprijs
- € 375.000,- k.k.
- Status
- Verkocht
- Aangeboden sinds
- 4 maanden
- Aanvaarding
- In overleg
Bouw
- Soort object
- Appartement
- Appartement soort
- Galerijflat
- Appartement type
- Appartement
- Bouwjaar
- 2005
- Type gebouw
- Bestaande bouw
Oppervlakten en inhoud
- Woonoppervlakte
- 64 m²
- Inhoud
- 212 m³
Opmaak
- Aantal slaapkamers
- 2 slaapkamers
- Aantal kamers
- 3 kamers
- Aantal badkamers
- 1 badkamer
- Aantal woonlagen
- 1 woonlaag
- Voorzieningen
- 1 douche
Energie
- Energieklasse
- A
- Einddatum energielabel
- 02-04-2028
- Isolatie
- volledig geïsoleerd
- Type ketel
- Nefit
- Boiler jaar
- 2022
- Boiler eigendom
- Eigendom
- CV ketel combiketel
- Ja
Buitenruimte
- Ligging
- aan rustige weg, in centrum




