LeidenUtrechtse Jaagpad 40€ 469.000,- k.k.

Bezichtiging aanvragen

Description

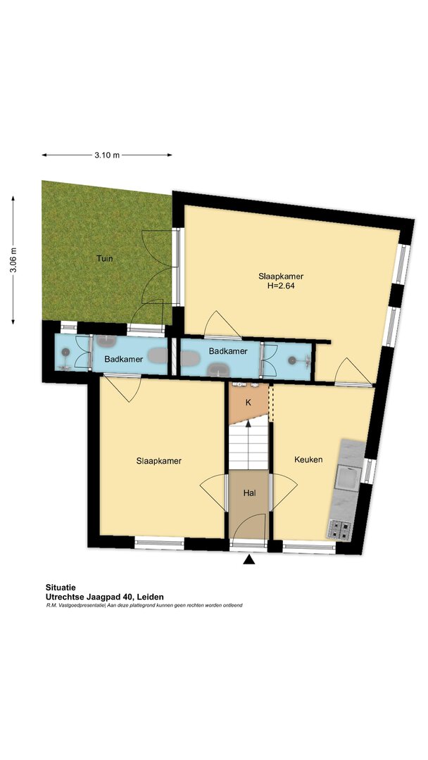
Located a short distance from the city centre of Leiden and overlooking a waterway, this charming corner house dates from the early 20th century. The property has a solid foundation and offers the opportunity to make further adjustments according to your own preferences. The living area is approximately 84 m², spread over two floors. The property was until recently rented out in rooms, which explains the presence of multiple bathrooms. However, the layout lends itself well to conversion into an attractive starter home with three bedrooms. During a viewing, we would be happy to explain the possibilities in more detail. The centre of Leiden is just a few minutes away by bicycle, as are other amenities such as supermarkets. Layout Ground floor Entrance to the property. Hallway with access to the first bedroom at the front left, the kitchen on the right and the staircase to the first floor. The bedroom has an en-suite bathroom with a shower, washbasin and toilet. From the bathroom there is also a door leading to the garden. The kitchen features an original granito floor and a simple kitchen unit. Under the staircase there is a storage cupboard which also houses the meter cupboard. From the kitchen there is access to the second bedroom at the rear. This is a spacious room and could also be used as a living room if desired. This room also has an en-suite bathroom with a shower, washbasin and toilet. The garden or courtyard can be accessed through French doors. The sheltered courtyard faces southeast. First floor Small landing with access to a separate toilet and a bathroom with shower and washbasin. At the rear is a bedroom with access to the balcony. The kitchen at the front can be reached from the landing and features a neat kitchen unit. From the kitchen there is access to the bedroom at the front, which also has access to the balcony. Additional features Living area: 84.5 m² Building-related outdoor space (balcony): 3 m² Volume: 287.1 m³ Year of construction: 1915 Electrical installation renewed in 2018 with sufficient groups and residual-current devices Heating and hot water via HR combi boiler (2018) Roof and façade insulation installed in 2018 Fitted with HR+ glazing in wooden window frames Energy label C Located in a quiet street with views over the water Parking available via permit system zone B

Features

Address Details

Street name
Utrechtse Jaagpad
House number
40
Zipcode
2313 KZ
City
Leiden

Transfer of ownership

Asking price
€ 469.000,- k.k.
Status
New
Listed since
2 days
Acceptance
In consulation

Construction

Kind of object
House
House kind
Single family house
House type
End house
Year of construction
1915
Building type
Existing construction

Surface areas and volume

Usable area
85 m²
Plot area
62 m²
Volume area
287 m³

Layout

Number of bedrooms
3 bedrooms
Number of rooms
4 rooms
Number of bathrooms
2 bathrooms
Number of stories
2 stories
Facilities
2 douches, 1 toilet

Energy

Energy class
C
Energy label end date
14-04-2036
Insulation
roof, double glass
Boiler type
HR-combiketel
Boiler year
2018
Boiler property
Owned
Boiler combi
Yes

Exterior space

Location
by water, calm road, free view, open site, by waterway
Garden location
South

Bezichtiging aanvragen

  • This field is for validation purposes and should be left unchanged.

LeidenUtrechtse Jaagpad 40€ 469.000,- k.k.

Bezichtiging aanvragen

Description

Located a short distance from the city centre of Leiden and overlooking a waterway, this charming corner house dates from the early 20th century. The property has a solid foundation and offers the opportunity to make further adjustments according to your own preferences. The living area is approximately 84 m², spread over two floors. The property was until recently rented out in rooms, which explains the presence of multiple bathrooms. However, the layout lends itself well to conversion into an attractive starter home with three bedrooms. During a viewing, we would be happy to explain the possibilities in more detail. The centre of Leiden is just a few minutes away by bicycle, as are other amenities such as supermarkets. Layout Ground floor Entrance to the property. Hallway with access to the first bedroom at the front left, the kitchen on the right and the staircase to the first floor. The bedroom has an en-suite bathroom with a shower, washbasin and toilet. From the bathroom there is also a door leading to the garden. The kitchen features an original granito floor and a simple kitchen unit. Under the staircase there is a storage cupboard which also houses the meter cupboard. From the kitchen there is access to the second bedroom at the rear. This is a spacious room and could also be used as a living room if desired. This room also has an en-suite bathroom with a shower, washbasin and toilet. The garden or courtyard can be accessed through French doors. The sheltered courtyard faces southeast. First floor Small landing with access to a separate toilet and a bathroom with shower and washbasin. At the rear is a bedroom with access to the balcony. The kitchen at the front can be reached from the landing and features a neat kitchen unit. From the kitchen there is access to the bedroom at the front, which also has access to the balcony. Additional features Living area: 84.5 m² Building-related outdoor space (balcony): 3 m² Volume: 287.1 m³ Year of construction: 1915 Electrical installation renewed in 2018 with sufficient groups and residual-current devices Heating and hot water via HR combi boiler (2018) Roof and façade insulation installed in 2018 Fitted with HR+ glazing in wooden window frames Energy label C Located in a quiet street with views over the water Parking available via permit system zone B

Features

Address Details

Street name
Utrechtse Jaagpad
House number
40
Zipcode
2313 KZ
City
Leiden

Transfer of ownership

Asking price
€ 469.000,- k.k.
Status
New
Listed since
2 days
Acceptance
In consulation

Construction

Kind of object
House
House kind
Single family house
House type
End house
Year of construction
1915
Building type
Existing construction

Surface areas and volume

Usable area
85 m²
Plot area
62 m²
Volume area
287 m³

Layout

Number of bedrooms
3 bedrooms
Number of rooms
4 rooms
Number of bathrooms
2 bathrooms
Number of stories
2 stories
Facilities
2 douches, 1 toilet

Energy

Energy class
C
Energy label end date
14-04-2036
Insulation
roof, double glass
Boiler type
HR-combiketel
Boiler year
2018
Boiler property
Owned
Boiler combi
Yes

Exterior space

Location
by water, calm road, free view, open site, by waterway
Garden location
South

Request viewing

  • This field is for validation purposes and should be left unchanged.

×

Appointment house

  • This field is for validation purposes and should be left unchanged.