LeidenBreestraat 63-A€ 895.000,- k.k.
Beschrijving
Achter de imposante façade van dit voormalige ING-bankpand gaat een prachtige bijzonder ruime bovenwoning schuil. Dit gemeentelijke monument onderscheidt zich niet alleen door zijn karaktervolle uitstraling en rijke verleden, maar vooral door het royale dakterras met een schitterend uitzicht over de historische binnenstad van Leiden en de markante Pieterskerk. Ruimte is hier volop aanwezig: de woning is hoofdzakelijk op de tweede verdieping, maar heeft nog een kamer en dakterras op de derde verdieping. Er zijn verder 4 slaapkamers, twee badkamers en een royale woonkamer met open keuken. Bovendien hoort er een eigen parkeerplaats bij met toegang via de Langebrugzijde.
De ligging midden in de historische binnenstad maakt dit tot één van de meest gewilde woonplekken van de stad. De statige panden in de straat combineren grandeur met een verrassend knus karakter. U woont hier in een levendig stadsdeel, terwijl rust en privacy behouden blijven. Gezellige winkelstraten, koffiebars, restaurants, delicatessenzaken en boetiekjes bevinden zich op loopafstand en ook het centraal station is eenvoudig bereikbaar. Een unieke kans om te wonen op een uitzonderlijke locatie.
De indeling is als volgt:
Begane grond:
Het gebouw is toegankelijk via entrees aan zowel de Breestraat als de Langebrug. Aan de zijde van de Langebrug bevindt zich tevens de privéparkeerplaats voor bewoners. Op dit terrein staat ook nog een kleine berging voor dit appartement. Via het trappenhuis bereikt u de tweede verdieping waar de woning ligt.
Tweede verdieping:
De entree aan de Breestraat leidt naar de hal met toegang tot een hoger gelegen berging met wasmachineaansluiting, een toiletruimte met fonteintje, een achtergelegen werkkamer en een comfortabele slaapkamer. De woonkamer ligt aan de voorzijde en valt op door de fraaie houten vloer en de grote raampartijen die zorgen voor veel licht en uitzicht op onder andere de Waalse Kerk en de Stadsgehoorzaal. In de woonkamer is er ook nog een houtkachel voor de koude winterdag.
De moderne open keuken staat in een praktische hoekopstelling en biedt veel werk- en bergruimte. Ze is uitgerust met diverse inbouwapparatuur, waaronder een vaatwasser, oven, magnetron, vierpitskookplaat, rvs-afzuigkap en een aparte grill.
Vanuit de woonkamer bereikt u drie slaapkamers aan de achterzijde, die ook via de hal en werkkamer toegankelijk zijn. De hoofdslaapkamer heeft een eigen badkamer, stijlvol afgewerkt in neutrale tinten en voorzien van een douchecabine, wandcloset, designradiator en wastafel. De tweede badkamer, bereikbaar via de werkkamer, beschikt eveneens over een douche en wastafel.
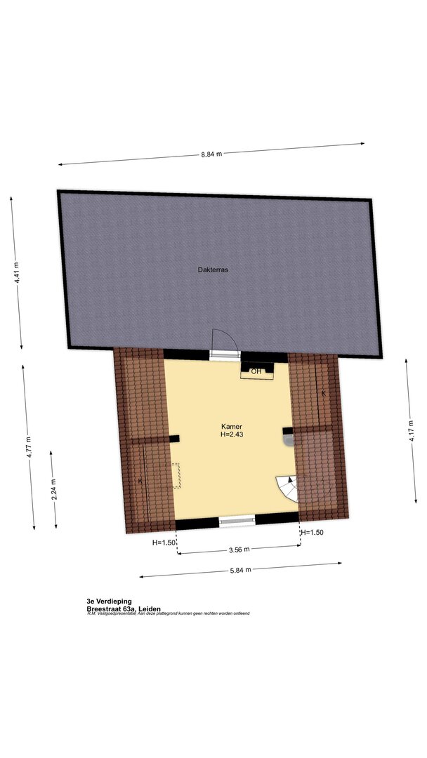
Derde verdieping:
Een open houten wenteltrap in de woonkamer leidt naar de bovenste verdieping met een vierde kamer, ideaal als slaapkamer of werkruimte en toegang tot het riante dakterras van 39 vierkante meter. De ruimte heeft een prachtige houten vloer en een karakteristiek balkenplafond dat de historie van het pand benadrukt. Het terras is een fantastische plek om te genieten van zon en weidse uitzichten over de stad.
Overige bijzonderheden:
– Gebruiksoppervlakte wonen (NEN 2580): 179 m2
– Gebouw gebonden buitenruimte (dakterras) 39 m2
– Inhoud: 690 m3
– Bouwjaar: 1910
– Energielabel: B
– Elektrische installatie: voldoende groepen met aardlekschakelaars
– Centrale verwarming en warm water middels cv-combiketel uit 2010
– Gemeentelijk monument
– Vrijwel geheel voorzien van dubbel glas (voorzijde uitgezonderd)
– Eigen parkeerplaats en gebruik van gezamenlijke fietsenrekken
– VvE-bijdrage € 250 per maand
– Voorbereiding voor zonnepanelen op het platte dak
Kenmerken
Adresgegevens
- Straatnaam
- Breestraat
- Huisnummer
- 63-A
- Postcode
- 2311 CJ
- Stad
- Leiden
Overdracht
- Vraagprijs
- € 895.000,- k.k.
- Status
- Te koop
- Aangeboden sinds
- 2 weken
- Aanvaarding
- In overleg
Bouw
- Soort object
- Appartement
- Appartement soort
- Bovenwoning
- Appartement type
- Appartement
- Bouwjaar
- 1910
- Type gebouw
- Bestaande bouw
Oppervlakten en inhoud
- Woonoppervlakte
- 179 m²
- Inhoud
- 690 m³
Opmaak
- Aantal slaapkamers
- 5 slaapkamers
- Aantal kamers
- 6 kamers
- Aantal badkamers
- 2 badkamers
- Aantal woonlagen
- 2 woonlagen
- Voorzieningen
- 2 douches, 1 toilet
Energie
- Energieklasse
- B
- Einddatum energielabel
- 13-11-2027
- Isolatie
- dakisolatie, dubbel glas
- Type ketel
- HR-combiketel
- Boiler jaar
- 2010
- Boiler eigendom
- Eigendom
- CV ketel combiketel
- Ja
Buitenruimte
- Ligging
- in centrum, vrij uitzicht
LeidenBreestraat 63-A€ 895.000,- k.k.
Beschrijving
Achter de imposante façade van dit voormalige ING-bankpand gaat een prachtige bijzonder ruime bovenwoning schuil. Dit gemeentelijke monument onderscheidt zich niet alleen door zijn karaktervolle uitstraling en rijke verleden, maar vooral door het royale dakterras met een schitterend uitzicht over de historische binnenstad van Leiden en de markante Pieterskerk. Ruimte is hier volop aanwezig: de woning is hoofdzakelijk op de tweede verdieping, maar heeft nog een kamer en dakterras op de derde verdieping. Er zijn verder 4 slaapkamers, twee badkamers en een royale woonkamer met open keuken. Bovendien hoort er een eigen parkeerplaats bij met toegang via de Langebrugzijde.
De ligging midden in de historische binnenstad maakt dit tot één van de meest gewilde woonplekken van de stad. De statige panden in de straat combineren grandeur met een verrassend knus karakter. U woont hier in een levendig stadsdeel, terwijl rust en privacy behouden blijven. Gezellige winkelstraten, koffiebars, restaurants, delicatessenzaken en boetiekjes bevinden zich op loopafstand en ook het centraal station is eenvoudig bereikbaar. Een unieke kans om te wonen op een uitzonderlijke locatie.
De indeling is als volgt:
Begane grond:
Het gebouw is toegankelijk via entrees aan zowel de Breestraat als de Langebrug. Aan de zijde van de Langebrug bevindt zich tevens de privéparkeerplaats voor bewoners. Op dit terrein staat ook nog een kleine berging voor dit appartement. Via het trappenhuis bereikt u de tweede verdieping waar de woning ligt.
Tweede verdieping:
De entree aan de Breestraat leidt naar de hal met toegang tot een hoger gelegen berging met wasmachineaansluiting, een toiletruimte met fonteintje, een achtergelegen werkkamer en een comfortabele slaapkamer. De woonkamer ligt aan de voorzijde en valt op door de fraaie houten vloer en de grote raampartijen die zorgen voor veel licht en uitzicht op onder andere de Waalse Kerk en de Stadsgehoorzaal. In de woonkamer is er ook nog een houtkachel voor de koude winterdag.
De moderne open keuken staat in een praktische hoekopstelling en biedt veel werk- en bergruimte. Ze is uitgerust met diverse inbouwapparatuur, waaronder een vaatwasser, oven, magnetron, vierpitskookplaat, rvs-afzuigkap en een aparte grill.
Vanuit de woonkamer bereikt u drie slaapkamers aan de achterzijde, die ook via de hal en werkkamer toegankelijk zijn. De hoofdslaapkamer heeft een eigen badkamer, stijlvol afgewerkt in neutrale tinten en voorzien van een douchecabine, wandcloset, designradiator en wastafel. De tweede badkamer, bereikbaar via de werkkamer, beschikt eveneens over een douche en wastafel.
Derde verdieping:
Een open houten wenteltrap in de woonkamer leidt naar de bovenste verdieping met een vierde kamer, ideaal als slaapkamer of werkruimte en toegang tot het riante dakterras van 39 vierkante meter. De ruimte heeft een prachtige houten vloer en een karakteristiek balkenplafond dat de historie van het pand benadrukt. Het terras is een fantastische plek om te genieten van zon en weidse uitzichten over de stad.
Overige bijzonderheden:
– Gebruiksoppervlakte wonen (NEN 2580): 179 m2
– Gebouw gebonden buitenruimte (dakterras) 39 m2
– Inhoud: 690 m3
– Bouwjaar: 1910
– Energielabel: B
– Elektrische installatie: voldoende groepen met aardlekschakelaars
– Centrale verwarming en warm water middels cv-combiketel uit 2010
– Gemeentelijk monument
– Vrijwel geheel voorzien van dubbel glas (voorzijde uitgezonderd)
– Eigen parkeerplaats en gebruik van gezamenlijke fietsenrekken
– VvE-bijdrage € 250 per maand
– Voorbereiding voor zonnepanelen op het platte dak
Kenmerken
Adresgegevens
- Straatnaam
- Breestraat
- Huisnummer
- 63-A
- Postcode
- 2311 CJ
- Stad
- Leiden
Overdracht
- Vraagprijs
- € 895.000,- k.k.
- Status
- Te koop
- Aangeboden sinds
- 2 weken
- Aanvaarding
- In overleg
Bouw
- Soort object
- Appartement
- Appartement soort
- Bovenwoning
- Appartement type
- Appartement
- Bouwjaar
- 1910
- Type gebouw
- Bestaande bouw
Oppervlakten en inhoud
- Woonoppervlakte
- 179 m²
- Inhoud
- 690 m³
Opmaak
- Aantal slaapkamers
- 5 slaapkamers
- Aantal kamers
- 6 kamers
- Aantal badkamers
- 2 badkamers
- Aantal woonlagen
- 2 woonlagen
- Voorzieningen
- 2 douches, 1 toilet
Energie
- Energieklasse
- B
- Einddatum energielabel
- 13-11-2027
- Isolatie
- dakisolatie, dubbel glas
- Type ketel
- HR-combiketel
- Boiler jaar
- 2010
- Boiler eigendom
- Eigendom
- CV ketel combiketel
- Ja
Buitenruimte
- Ligging
- in centrum, vrij uitzicht




