LeidenMorsweg 53€ 325.000,- k.k.
Beschrijving
Recent gemoderniseerd hoekappartement op toplocatie – Morsweg 53, Leiden
Wonen op loopafstand van hartje Leiden én direct kunnen verhuizen? Dit recent volledig gemoderniseerde hoekappartement is net opgeleverd en biedt alles wat je nodig hebt: licht, ruimte, een slimme indeling en een ideale ligging. Perfect als je op zoek bent naar je eerste eigen plek!
Gelegen aan de rand van het historische centrum van Leiden woon je hier rustig, maar met alle levendigheid van de stad binnen handbereik. Binnen vijf minuten lopen sta je in het bruisende hart van de stad, met talloze winkels, cafés en restaurants. Ook qua bereikbaarheid zit je hier helemaal goed: Leiden Centraal ligt op slechts 3 minuten fietsen of 6 minuten lopen. Met de auto ben je via de A4 of A44 zó onderweg richting Amsterdam, Den Haag of Schiphol. Parkeren in de straat is mogelijk met een vergunning, en er is doorgaans voldoende plek.
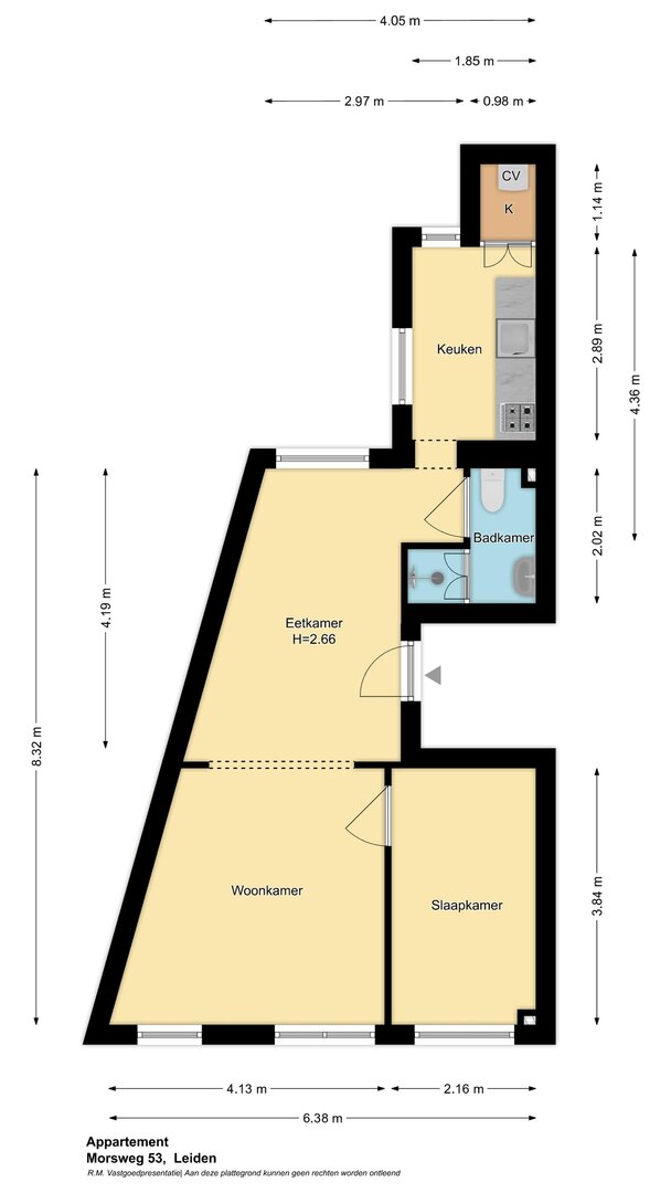
De indeling is als volgt:
Begane grond:
Bij binnenkomst op de begane grond vind je de entree met meterkast, gevolgd door de trap naar de eerste verdieping. Hier bevindt zich een heerlijk lichte woon- en eetkamer, gescheiden door een sfeervolle boog, met ramen aan zowel de voor- als achterzijde.
Eerste verdieping:
De slaapkamer ligt aan de voorzijde en biedt voldoende ruimte. De moderne badkamer is voorzien van een toilet, inloopdouche en een wastafelmeubel met spiegel met anticondensfunctie. De halfopen keuken is slim ingedeeld, krijgt veel daglicht en is uitgerust met een inductiekookplaat, afzuigkap, oven en vaatwasser.
Ook is er een aparte ruimte met aansluiting voor de wasmachine en de nieuwe cv-ketel (2025).
VvE:
De Vereniging van Eigenaren (VvE) zal op korte termijn voldoen aan de wettelijke minimumeisen. Er is al een gezamenlijke opstalverzekering afgesloten en een bankrekening geopend. De maandelijkse bijdrage aan de VvE zal naar verwachting uitkomen op circa € 60 euro per maand.
Overige bijzonderheden
• Gebruiksoppervlakte wonen: 45,5 m²
• Bruto inhoud: 164,9 m³
• Energielabel C
• Hoekappartement met veel lichtinval
• Recent volledig gemoderniseerd en instapklaar
• Gehele appartement voorzien van vloerverwarming
• Nieuwe cv-ketel (2025)
• Ideaal voor starters
• Op loopafstand van het centrum
• Goed bereikbaar met zowel OV als auto
• Dubbele beglazing en houten kozijnen
Kortom: een comfortabel, modern en sfeervol appartement op een fantastische locatie in Leiden. Kom snel kijken!
Kenmerken
Adresgegevens
- Straatnaam
- Morsweg
- Huisnummer
- 53
- Postcode
- 2312 AB
- Stad
- Leiden
Overdracht
- Vraagprijs
- € 325.000,- k.k.
- Status
- Verkocht
- Aangeboden sinds
- 5 maanden
- Aanvaarding
- In overleg
Bouw
- Soort object
- Appartement
- Appartement soort
- Bovenwoning
- Appartement type
- Appartement
- Bouwjaar
- 1929
- Type gebouw
- Bestaande bouw
Oppervlakten en inhoud
- Woonoppervlakte
- 46 m²
- Inhoud
- 165 m³
Opmaak
- Aantal slaapkamers
- 1 slaapkamer
- Aantal kamers
- 1 kamer
- Aantal badkamers
- 1 badkamer
- Aantal woonlagen
- 1 woonlaag
- Voorzieningen
- 1 douche, 1 toilet
Energie
- Energieklasse
- C
- Einddatum energielabel
- 03-12-2030
- Isolatie
- dakisolatie, HR-glas
- Boiler jaar
- 2025
- Boiler eigendom
- Eigendom
- CV ketel combiketel
- Ja
Buitenruimte
- Ligging
- in woonwijk




