LeidenHooigracht 68€ 285.000,- k.k.
Description
Dit sfeervolle 2-kamerappartement bevindt zich op de begane grond van een karakteristiek pand midden in het hart van Leiden. Het appartement heeft een praktische indeling en ligt op een fantastische locatie. Perfect voor starters of iedereen die op zoek is naar een prettige, levendige woonplek in de stad.
De Hooigracht is een van de levendige straten in het historische centrum van Leiden. Hier woon je op loopafstand van alles wat deze prachtige stad te bieden heeft. Ontdek de sfeervolle grachten, gezellige terrassen en uitstekende restaurants om de hoek. Voor je dagelijkse boodschappen kun je terecht bij de nabijgelegen supermarkten en speciaalzaken, en ook de Haarlemmerstraat, met haar brede aanbod aan winkels, ligt op slechts een paar minuten lopen. Daarnaast zijn diverse parken, zoals het Plantsoen, en culturele trekpleisters zoals de Pieterskerk en de Hortus Botanicus, makkelijk bereikbaar. Dankzij de centrale ligging ben je bovendien snel op het station en de uitvalswegen. Kortom, een ideale plek voor wie het stadsleven wil combineren met comfort en gemak!
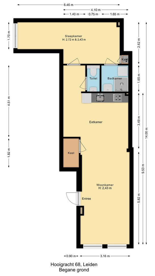
De indeling is als volgt:
Gezamenlijk entree met meterkast en trapopgang naar de verdiepingen en toegang tot het appartement.
Bij binnenkomst stap je de woning binnen in een lichte woonkamer met open keuken. Aan de voorzijde zorgen de grote ramen voor veel natuurlijk licht, wat de ruimte een prettige sfeer geeft. De keuken biedt volop opbergruimte en is uitgerust met diverse inbouwapparatuur, waaronder een koel-vriescombinatie, vaatwasser, 4-pits gasfornuis met afzuigkap en oven. Onder de trap bevindt zich een ruime, slim ingedeelde kast. Verder naar achteren vind je een apart toilet met fontein. De ruime slaapkamer biedt voldoende plek voor een werkhoek en geeft toegang tot de badkamer, die is voorzien van een douche, wastafelmeubel, handdoekradiator en aansluiting voor de wasmachine.
Overige bijzonderheden:
– Gebruikersoppervlakte wonen: 56,5 m2
– Inhoud: 180 m3
– Bouwjaar: 1901
– Verwarming en warm water middels HR-combiketel
– Valt binnen beschermd stadsgezicht
– Goed bereikbaar met het openbaar vervoer en dicht bij uitvalswegen
– Centraal gelegen in het hart van Leiden, op loopafstand van winkels, horeca en culturele hotspots
Features
Address Details
- Street name
- Hooigracht
- House number
- 68
- Zipcode
- 2312 KW
- City
- Leiden
Transfer of ownership
- Asking price
- € 285.000,- k.k.
- Asking price per m²
- € 5.000
- Status
- Sold
- Listed since
- 5 weeks
- Acceptance
- In consulation
Construction
- Kind of house
- Apartment
- Year of construction
- 1901
Surface areas and volume
- Usable area
- 57 m²
- Volume area
- 180 m³
Layout
- Number of bedrooms
- 1 bedroom
- Number of rooms
- 2 rooms
- Number of bathrooms
- 1 bathroom
- Number of stories
- 1 story
- Facilities
- 1 douche
Energy
- Energy class
- C
- Energy label end date
- 29-11-2034
- Insulation
- roof, double glass
- Boiler type
- HR-combiketel
- Boiler property
- Owned
- Boiler combi
- Yes
Exterior space
- Location
- in centrum




