LeidenKoestraat 6€ 515.000,- k.k.
Description
In een rustige straat tussen de Oude Vest en de Haarlemmerstraat aan de kant van de Haven in ligt bijzondere pand met veel mogelijkheden. In de woning is een appartement in het achterhuis met twee lagen. Aan de voorzijde is er een dubbele bovenwoning. De woning wordt leeg opgeleverd.
Tot voor kort was de woning verhuurd met drie appartementen. Daarvoor was het achterhuis in gebruik als praktijkruimte en het voorhuis verhuurd met twee appartementen.
De woning biedt vele mogelijkheden door zijn unieke indelingen.
Studerenden kinderen of een thuiswonend kind die nog geen eigen woning kan krijgen? Deze woning biedt de mogelijkheid om zelf het voorhuis te betrekken en hier een ruim appartement te realiseren terwijl uw kind het achterhuis betrekt. Of laat uw kind een van de appartementen betrekken en verhuur de rest.
Zoekt u een ruim appartement met eigen praktijkruimte in het achterhuis? Ook daar is deze woning uitermate geschikt voor.
Er loopt een aanvraag voor het splitsen in 2 woningen. Het gebruiksoppervlakte wonen is 119 vierkante meter verdeeld over drie verdiepingen.
Vanuit de woning zijn vele gemakken van het centrum op loopafstand. Het Centraal Station van Leiden ligt op nog een tien minuten fietsen.
De indeling is als volgt: Entree woning. Grote ruime hal die momenteel in gebruik is al fietsenberging. Aan de achterzijde toegang tot het eerste appartement. Hal met toegang tot een gang met daar de badkamer met douche, wastafel en toilet. Daarachter ligt de slaapkamer.
Via een trap die vanuit de gang te bereiken is kom je aan op eerste verdieping. Daar is de woonkamer met open keuken. Het bijzondere van deze verdieping is het open gewerkte dag met de vele ramen.
Vanuit de hal/ fietsenberging is ook het tweede appartement op de eerste verdieping van het voorhuis te bereiken. Hal met daar een douche en een vaste kast met daarin de cv-ketel en de wasmachine aansluiting. Trap naar de eerste verdieping. Overloop met toegang tot de woonkamer aan de straatzijde. Aan de achterzijde de keuken en het toilet.
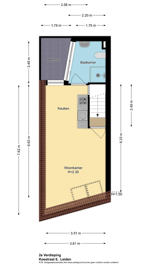
Tweede verdieping. Op deze verdieping was nog een derde appartement met een woonkamer, keuken en aan de achterzijde een badkamer met een douche, wastafel en toilet. Vanuit de badkamer is er toegang tot het dakterras.
Overige bijzonderheden:
– Gebruikersoppervlakte wonen: 118.6 m2
– Overige inpandige ruimte: 16.3 m2
– Gebouw gebonden buitenruimte: 3.9 m2
– Inhoud 459.6 m3
– Bouwjaar 1910
– Verwarming en warm water door middel van een HR-ketel
– Electrische installatie voldoende groepen met aardlekschakelaar
Features
Address Details
- Street name
- Koestraat
- House number
- 6
- Zipcode
- 2312 XJ
- City
- Leiden
Transfer of ownership
- Asking price
- € 515.000,- k.k.
- Asking price per m²
- € 4.328
- Status
- Sold
- Listed since
- 4 months
- Acceptance
- In consulation
Construction
- Kind of house
- House
- Year of construction
- 1910
Surface areas and volume
- Usable area
- 119 m²
- Plot area
- 66 m²
- Volume area
- 460 m³
Layout
- Number of bedrooms
- 3 bedrooms
- Number of rooms
- 4 rooms
- Number of bathrooms
- 3 bathrooms
- Number of stories
- 3 stories
- Facilities
- 3 douches, 2 toiletten
Energy
- Energy class
- D
- Energy label end date
- 03-07-2035
- Insulation
- roof, double glass
- Boiler type
- HR-combiketel
- Boiler property
- Owned
- Boiler combi
- Yes
Exterior space
- Location
- calm road, in centrum




